Leased for $400 per week until September 2026.
Positioned in a quiet Summerhill location, this solid brick unit built in 1993 offers a neat and low-maintenance lifestyle with all the essentials at your doorstep. Currently tenanted, it presents an excellent opportunity for investors seeking an immediate rental return.
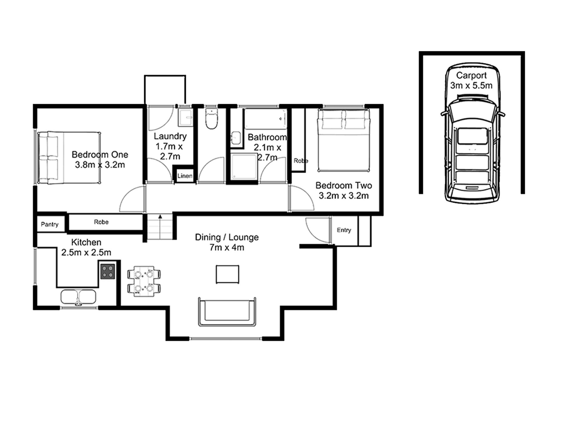
Inside, the home features a practical open-plan layout with a well-appointed kitchen including pantry, adjoining dining area, and a spacious living zone with the comfort of a reverse cycle heat pump. Both bedrooms are generously sized and fitted with built-in robes, while the bathroom provides a separate shower, bath, vanity, and the convenience of a separate toilet.
The low-maintenance backyard is neat and captures all-day sun, including a little garden shed - perfect for storing tools or creating a small hobby space. A single carport at the end of an internal driveway is complemented by additional off-street parking.
Well suited to investors, first home buyers, or downsizers. Located within walking distance to schools, public transport, and parks, and only five minutes from the Launceston CBD, it delivers both lifestyle and convenience.
Disclaimer - We have in preparing this listing used our best endeavours to ensure the information is true & accurate. Prospective purchasers are advised to carry out their own investigations.
Features
- Air Conditioning
- Built-in Wardrobes



















































